hiša vič-rudnik

Novogradnja - Verižna hiša 16_E na Viču
(P+1+T, 3. podaljšana gradbena faza, prevzem je možen takoj
)

Prodamo hišo v 3. podaljšani gradbeni fazi, ki je del novo nastajajočega ograjenega naselja verižnih hiš na Viču. Naselje obsega 17 hiš etažnosti P+1+T, petih stanovanjskih tipov, z urejenim parkiriščem pred samim objektom. Odlična lokacija nudi hiter dostop do strogega mestnega središča in obvoznice ter vse potrebne infrastrukture, hkrati pa omogoča zasebnost in stik z naravo, ki se nahaja v bližini. Znotraj samega naselja bodo na novo posajena drevesa in urejene skupne zelene površine ter otroško igrišče. Hiša je izdelana in opremljena z materiali višjega cenovnega razreda, dodatno pa jo odlikujejo funkcionalni in premišljeni tlorisi. Namenjena je vsem generacijam z visokimi standardi bivanja.

Gradnja je že zaključena v 3.podaljšani fazi z urejeno okolico. Prevzem je možen takoj.

OSNOVNE ZNAČILNOSTI

  • Balkon/terasa: da
  • Parkirno mesto: da, urejeno parkirišče pred hišo
  • Shramba: da
  • Število kopalnic: 2 kopalnici in dodatno ločen WC za goste

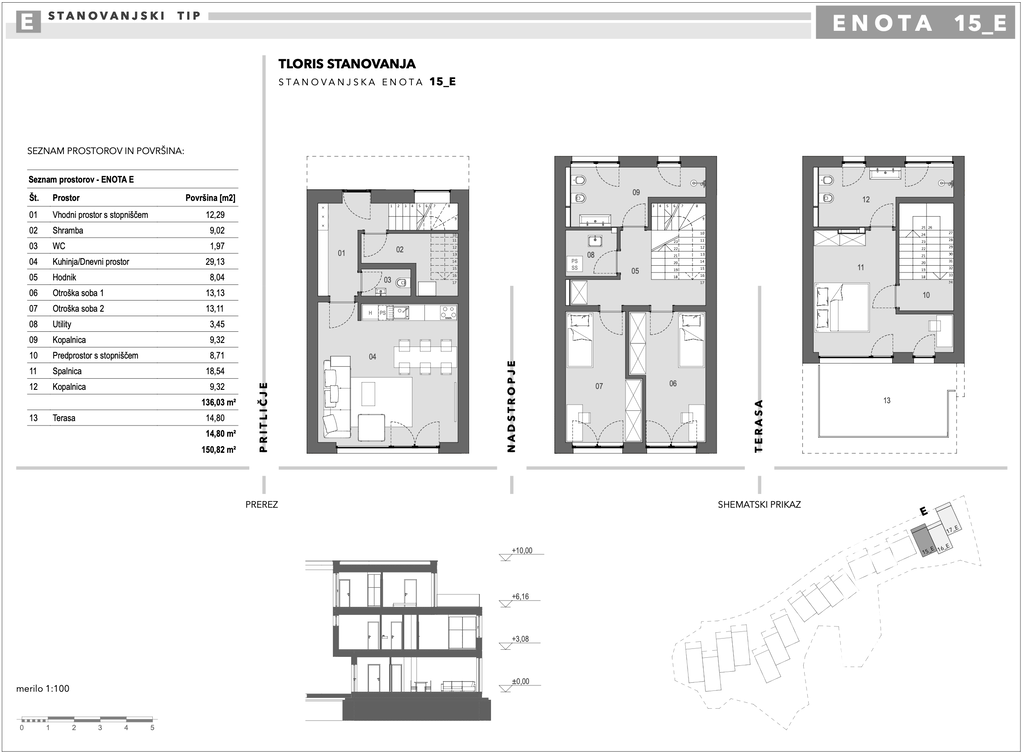
POVRŠINA

  • Skupne površine: 153,42 m2
  • Bivalne površine: 138,61 m2
  • Terasa: 14,8 m2
  • Površina zemljišča: 170,97 m2

RAZPOREDITEV SOB

  • PRITLIČJE: vhodni prostor s stopniščem, shramba, WC, velik dnevni prostor s kuhinjo, hodnik
  • NADSTROPJE: otroška soba 1, otroška soba 2, utility, kopalnica
  • TERASNA ETAŽA: predprostor s stopniščem, spalnica, kopalnica

LEGA

  • JUG

PRIKLJUČKI

  • Elektro priključek
  • Telekomunikacijsko omrežje
  • Vodovodni priključek
  • Ogrevanje: predviden plin, predpriprava za toplotno črpalko

INFRASTRUKTURA

Hiša se nahaja na odlični lokaciji na Viču in nudi hiter dostop do strogega mestnega središča in obvoznice, hkrati pa vam omogoča zasebnost in stik z naravo, ki se nahaja v bližini. V bližini je vsa potrebna infrastruktura, potrebna za udobno bivanje.

OSNOVNE INFORMACIJE VERIŽNE HIŠE VIČ

  • Armiranobetonske nosilne in zunanje stene, z ločenimi ploščami med hišami.
  • Asvaltirana cesta znotraj naselja.
  • Naselje (in med hišami) ograjeno s panelnimi ograjami.
  • Celotni obod objekta bo v večini izoliran s termoizolacijskimi ploščami (stiropor) debeline 20 cm v kombinaciji z zaključnim slojem baumit.
  • Nadstandardna okna ALU/LES, znamke KOŠAK, energetsko učinkovita z TROSLOJNO zasteklitvijo. Na zunanji strani oken bodo vgrajena senčila ZIP screen sistem s predpripravo na električni pogon.
  • Vhodna vrata so aluminijasta, znamke PIRNAR. Kvalitetna protivlomna in zvočno izolirana, opremljena s cilindrično elektro ključavnico s čitalcem prstnih odtisov in večtočkovnim zapiranjem, WIFI funkcijo in PIRNAR aplikacijo. Dimenzije 1,100 mm in 2,500 mm.
  • Strehe objektov so ravne, s prodcem, z minimalnem naklonom 1%, ki zagotavlja odvajanje meteorne vode.
  • Predvideno ogrevanje na plin, pripravljena pa bo tudi predpriprava za toplotno črpalko.
  • Vse bo pilotirano na betonu: Jet grouting metoda.

DODATNO

Oglaševana cena že vključuje 9,5% DDV.

Vabljeni na ogled!

Osnovni podatki
Šifra oglasa: P6900
Regija: Ljubljana mesto
Lokacija: Vič-Rudnik
Leto prenove: -
Površina: 138,62 m2 bivalne površine
Orientiranost stanovanja: Jug
Ogrevanje: Toplotna črpalka, Plin
Leto izgradnje
2022
Površina
153 m2
Število nadstropij
- / -
Površina zemljišča
171 m2
Pokrito parkirišče
NE
Število sob
3
Ostalo:
  • Atrij
  • Vrt
  • Terasa
  • Parkirišče
  • Lep razgled
  • Bližina narave
  • Zelo sončno
  • Elektrika
  • Voda
  • Kanalizacija
  • Vpisano v ZK
  • Brez bremen
Energetska izkaznica
Cena 545.000,00 €
Barbara Strgar
Kontaktiraj
+386 (0) 31 206 106

,
NAROČITE OGLED
Podobna stanovanja
4 / 29

Želite biti na tekočem s ponudbo?

Ne zamudite odličnih priložnosti in aktualne ponudbe stanovanj, individualnih hiš, poslovnih prostorov ali zemljišč, ki ustrezajo vašim potrebam in željam.
Iščete nepremičnino?
Izpolnite obrazec,
kaj iščete.
Obveščali vas bomo
o nepremičninah.

Novogradnje

Nova stanovanja, individualne hiše in poslovni prostori v Ljubljani, okolici ali drugod po Sloveniji.
Ne spreglejte aktualne ponudbe novogradenj na odličnih lokacijah. Na voljo so tudi stanovanja in hiše v novih elitnih soseskah. Naša nepremičninska agencija v Ljubljani lahko zagotovo najde pravo nepremičnino za vaš okus.
Prikaži vse novogradnje
VRSTA POSLA
VRSTA NEPREMIČNINE
HIŠASTANOVANJEPOSLOVNI PROSTORPOSESTGARAŽAPOČITNIŠKI OBJEKT
REGIJA
OBMOČJE
CENA, ŠIFRA
Od: 0 €
Do: 4,175,000 €
išči
Iskalnik nepremičnin
Ekipa Mesto nepremičnin
Mesto nepremičnin d.o.o.
Podmilščakova 25
1000 Ljubljana
+386 1 507 10 60
+386 51 650 777
info@mestonepremicnin.si
*