
Podmilščakova 25
1000 Ljubljana
+386 1 507 10 60
+386 51 650 777
info@mestonepremicnin.si
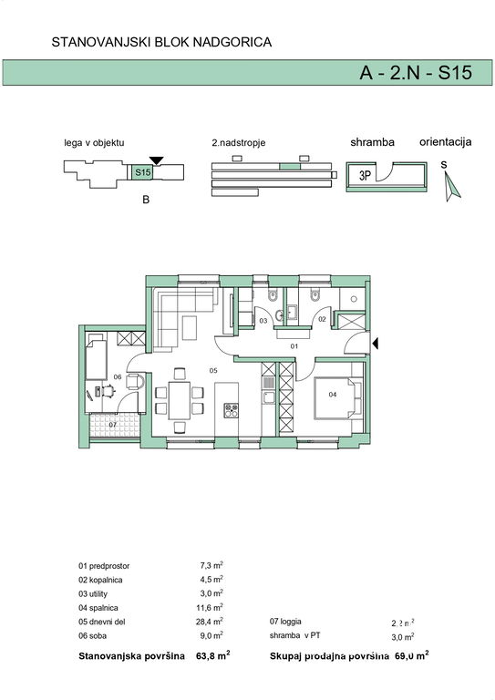
Na odlični lokaciji v Nadgorici prodamo 3-sobno stanovanje. Stanovanje je del novega stanovanjskega bloka s 16 stanovanji različnih velikosti, od kompaktnih garsonjer do prostornih 3-sobnih enot. Novogradnja se z uporabo kvalitetnih materialov, z veliko mero termoizolacije in sodobne tehnike, uvršča med pasivne (energetski razred A2), kar zagotavlja majhno porabo energije. Objekt odlikuje funkcionalna in moderna gradnja, ki bo navdušila vse, saj omogoča prilagoditev potrebam prav vseh kupcev, tako posameznikov kot družin. Slednje bo soseska še dodatno navdušila, saj vključuje otroško igrišče in druge površine za igro, kjer se lahko otroci zabavajo in razvijajo. Stanovanju pripada shramba v kleti in eno parkirno mesto, ki je opremljeno tudi s predpripravo za namestitev elektro polnilnice. Stanovanje ima tudi pokrit balkon.
Ne zamudite priložnosti, da postanete del te moderne soseske, kjer udobje in kakovost življenja hodita z roko v roki.
Stanovanje se nahaja v mirnem in prijaznem okolju, ki nudi odlično povezanost z mestnim središčem, bližino vseh potrebnih storitev in narave. Odlična lokacija nudi hiter dostop do avtoceste, LPP avtobusne postaje ter centra Ljubljane.
Vabljeni na ogled!


























